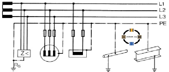
מהי שיטת ההגנה בפני התחשמלות המתוארת בתרשים?

תשובה 4
זינה צפה
הסיבה:
זינה צפה- איור מס'3 הארקות ואמצעי הגנה בפני חישמול – אין חיבור לנקודת הכוכב עם הארקת שיטה
והאות Z מסמלת משגוח
מהי שיטת ההגנה בפני התחשמלות המתוארת בתרשים?

תשובה 4
זינה צפה
הסיבה:
זינה צפה- איור מס'3 הארקות ואמצעי הגנה בפני חישמול – אין חיבור לנקודת הכוכב עם הארקת שיטה
והאות Z מסמלת משגוח
ברוך הבא ל"צומת חשמלאים" ע"פ
אנו מחוייבים לעדכן (בכל יום) בפופאפ על שימוש בקוקיז באתר.
קבצי טקסט המוצבים על המחשב במטרה לסייע לאתר לנתח כיצד המבקרים משתמשים באתר. האינפורמציה מועברת ונשמרת בשרתי גוגל.
גוגל משתמשת במידע זה כדי להעריך את השימוש שלך באתר, עריכת דוחות על פעילות האתר ועל השימוש באינטרנט בשביל מנהלי אתרים.
מבחינת מפעיל האתר המידע שנשמר הוא מינמילי וכולל את המייל ושם המשתמש, IP למעקב עבור סימולטור ההכנה לוועדה והשימוש בתגובות בפורום.